



Nearby Schools
ExeterElementary School
ExeterMiddle School
Exeter UnionHigh School
Description
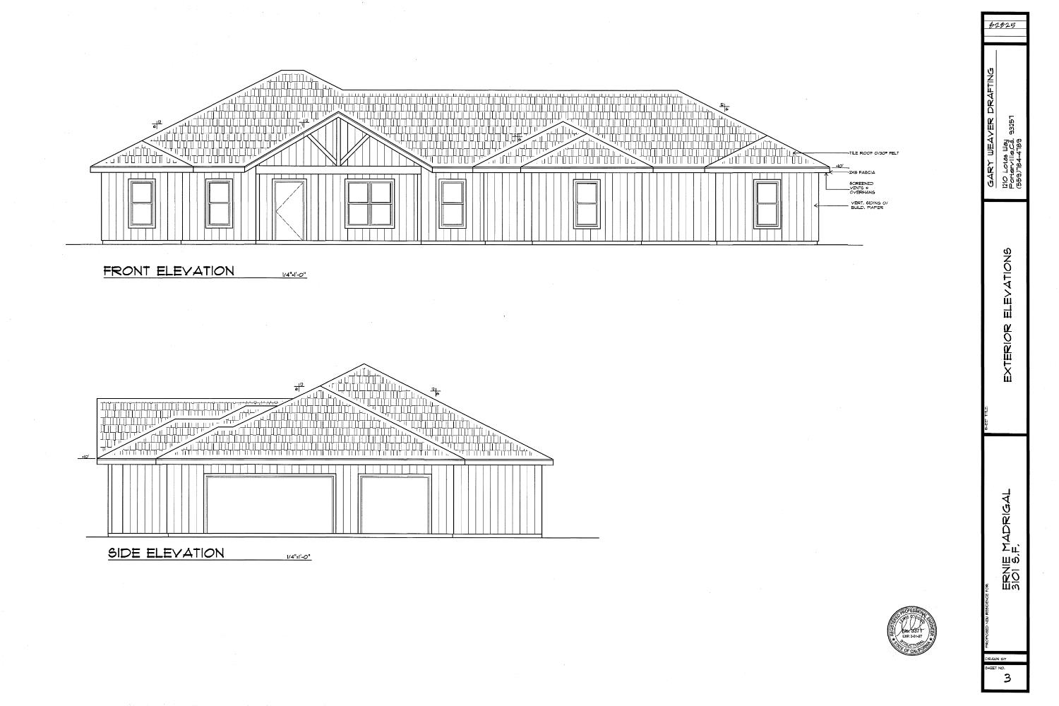
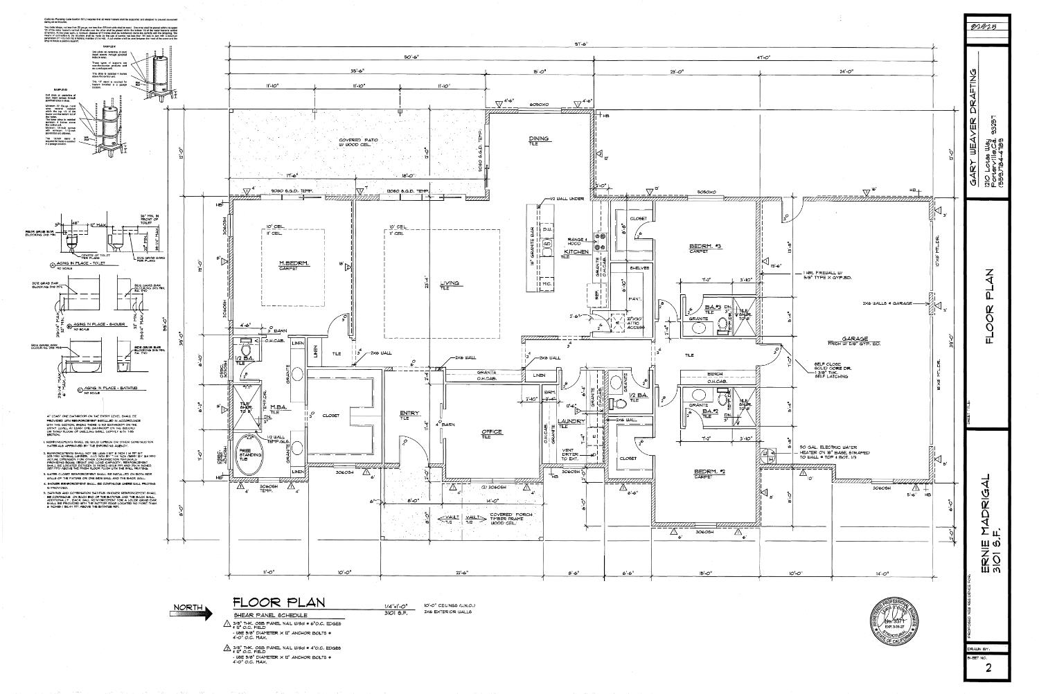
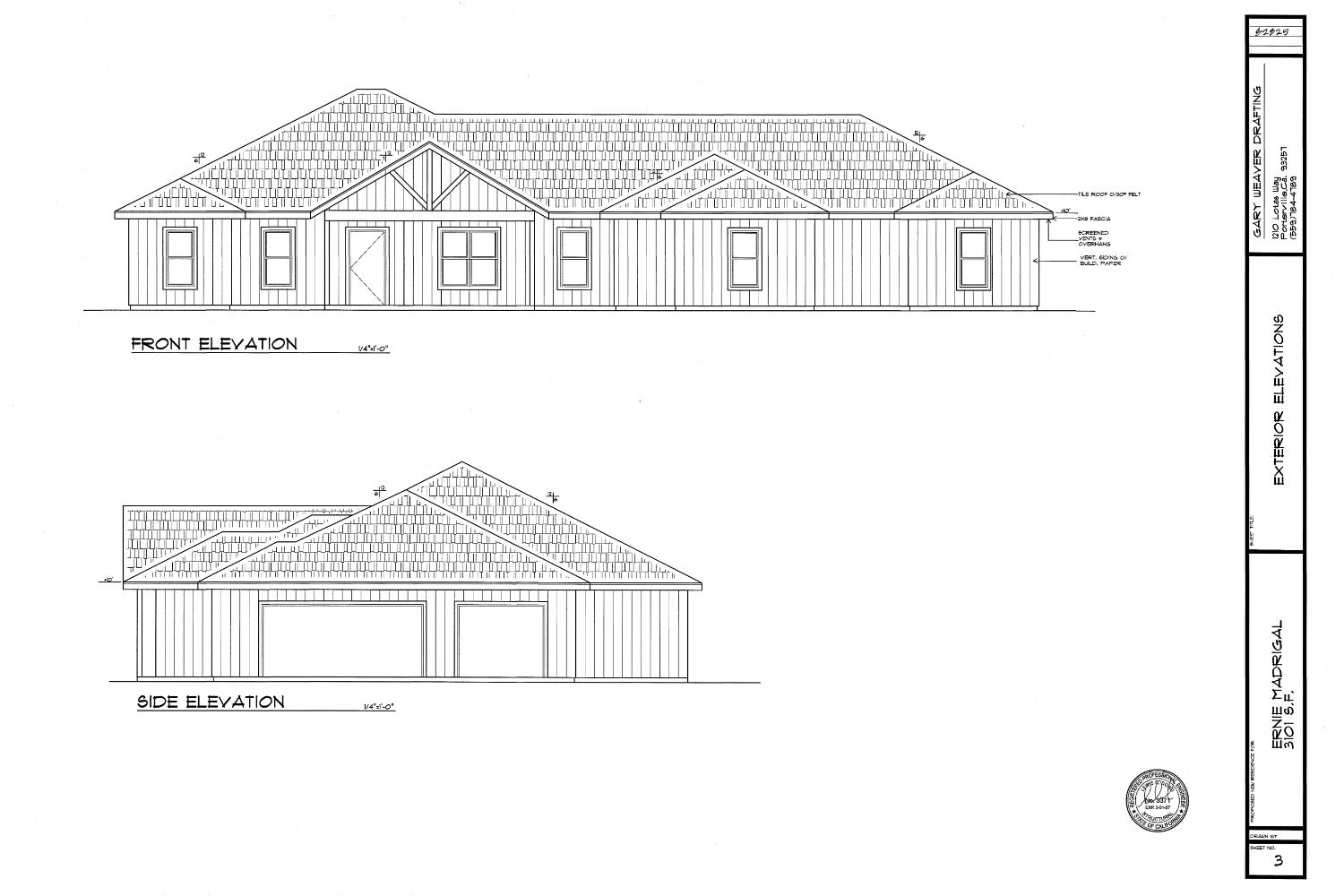
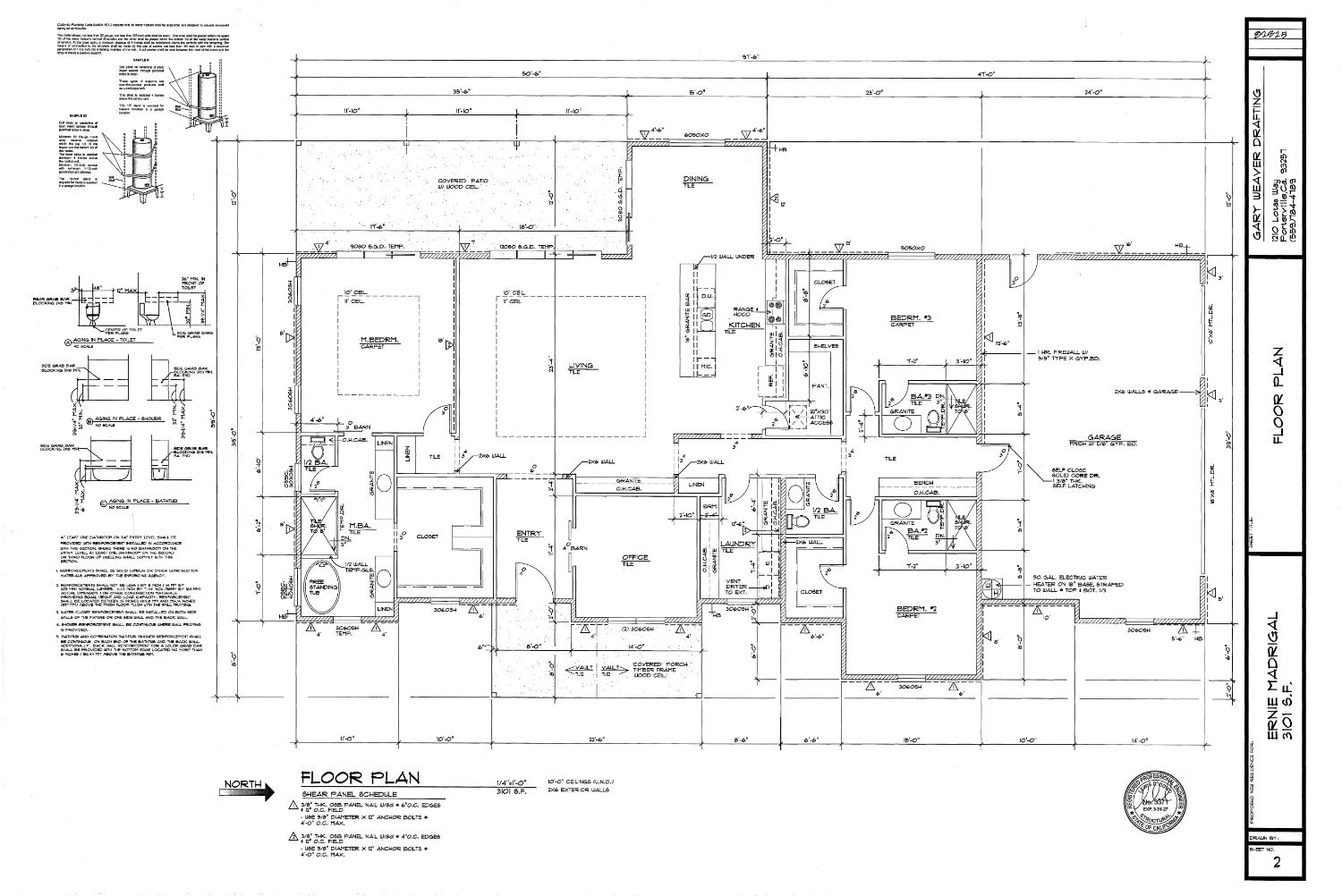
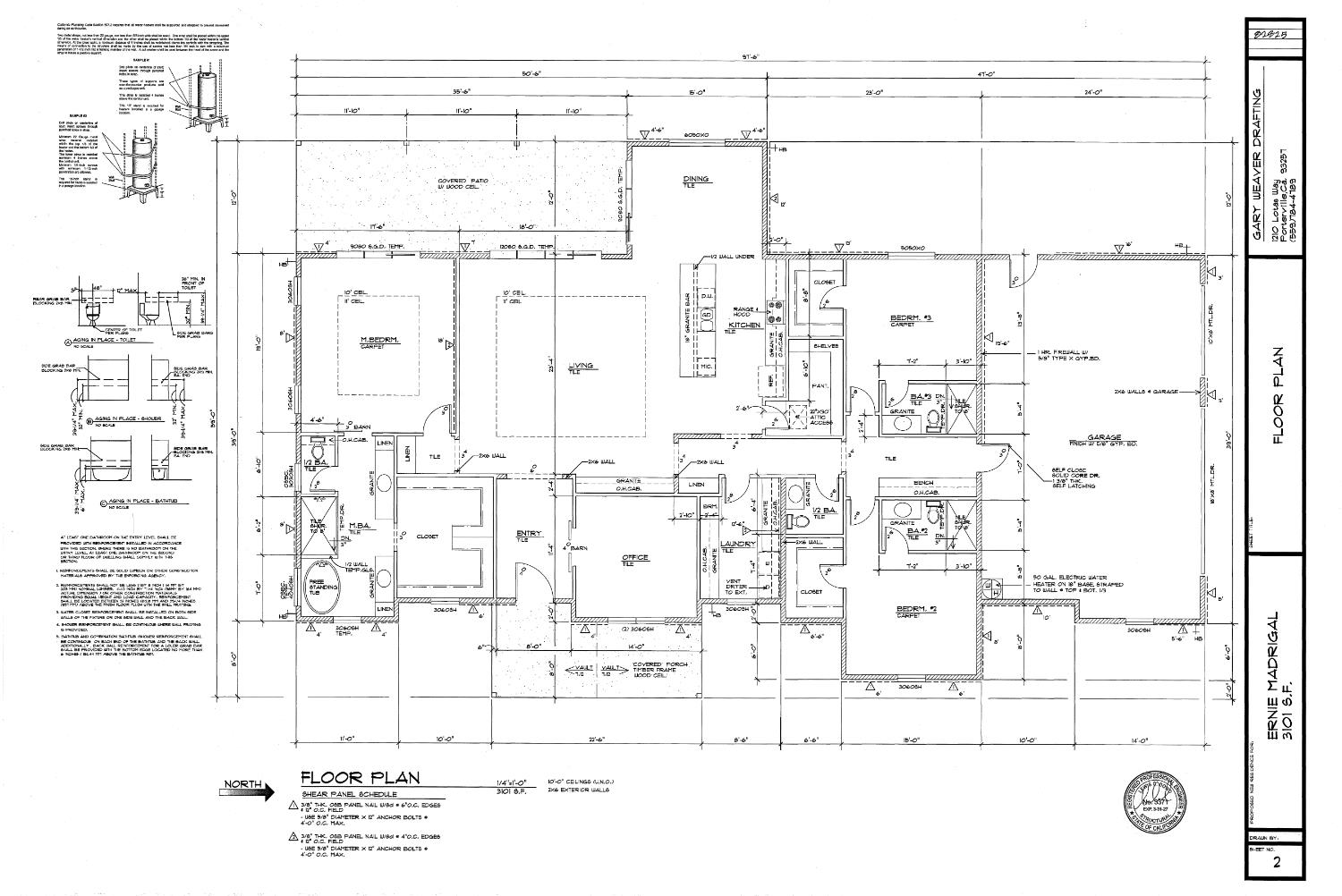
Construction is set to begin soon on this thoughtfully designed custom residence by Madrigal Prime Properties.Set on just over an acre with breathtaking foothill views, this 3,101 sq. ft. home blends modern comfort with timeless design. The spacious floor plan features 3 bedrooms, 3.5 bathrooms, and a private office, all centered around an open-concept living area that connects the kitchen, dining, and great room with ease. Enjoy seamless indoor-outdoor living with a covered patio and a future pool designed for entertaining or relaxing. Additional highlights include 10-ft ceilings, an indoor laundry room, and a finished garage. Construction beginning soon! Reach out for more details.
Location
Listed By
Listing Agent
Robyn E Icenhower
Independent Broker Network
Similar Listings
No similar listings found
Unfortunately, we don't have any similar listings at the moment. Please remove or change some of the selected filters.
Listing Information provided courtesy of the Fresno MLS/Association of Realtors. All data, including all measurements and calculations of area, is obtained from various sources and has not been, and will not be, verified by broker or MLS. All information should be independently reviewed and verified for accuracy. Properties may or may not be listed by the office/agent presenting the information. Updated: 17th April, 2026 11:41 PM (UTC)
Listing Agent: Robyn E Icenhower
Listing Office: Independent Broker Network





































